Not Your Average Rental

Welcome to The Quinn – Mount Forest’s newest rental community at 279 Fergus Street. This 12-unit development brings a fresh option for local living, with brand-new homes that are comfortable, practical, and easy to love.

You’ll find two great choices here: bright three-bedroom, three-bathroom two-storey homes for families who need space, or cozy one-bedroom basement suites that are efficient and affordable. Every unit is newly built with thoughtful details throughout.

Located in a quiet neighbourhood, The Quinn is just minutes from everything you need—grocery stores, schools, parks, and the downtown core. It’s the perfect mix of small-town charm and everyday convenience.

Whether you’re starting out, growing your family, or ready to simplify, The Quinn has a place for you. Pre-leasing now for spring 2026. 

The QUinn : mount forest

Interior

floor Plans

Features

overview

Interior Features

At The Quinn, comfort and design come together to create welcoming interiors that feel both modern and timeless. Each home features custom kitchens by Wilson Developments, paired with luxury vinyl flooring throughout—offering durability, warmth, and a clean, contemporary look. Whether you're entertaining or unwinding, the living spaces are designed to feel open, functional, and beautifully finished.

Upstairs units are filled with natural light, thanks to generously sized windows and open-concept layouts that maximize brightness throughout the day. Every home includes a full appliance package—washer, dryer, stove, and dishwasher—along with efficient heating and cooling systems to keep you comfortable year-round.

Residents also enjoy in-suite laundry, pet-friendly living, and one included parking space per unit. With utilities set up for individual metering, you have full control over your usage. From the cozy one-bedroom layouts to the expansive three-bedroom residences, every detail at The Quinn is designed to support effortless, everyday living.

The quinn : mount forest

Interior

floor Plans

Features

overview

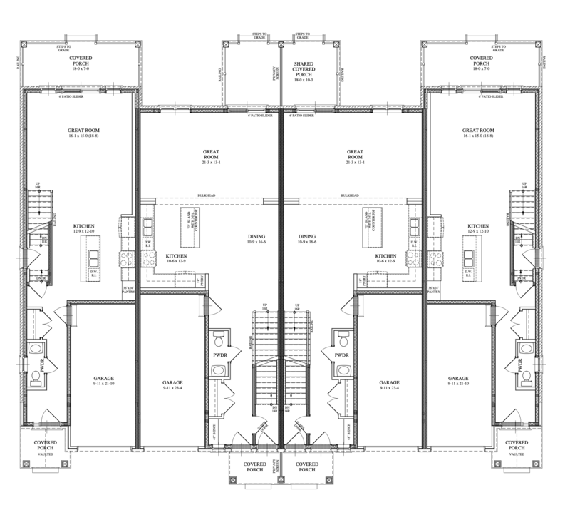
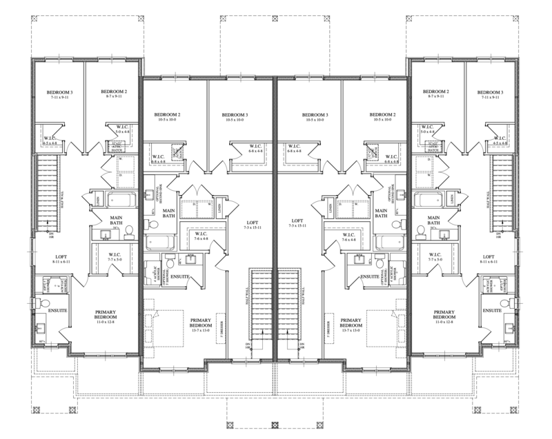
Upper unit

Lower unit

1624 - 1978 sq /feet 

Three bedrooms, three bathrooms, covered front and back porch.

430 - 624 sq /feet 

One bedroom, one bathroom, separate entrance

Interior

floor Plans

Features

overview

The features

Inside every home at The Quinn, you’ll find a refined blend of style and comfort designed to elevate everyday living. From the custom cabinetry to the flowing, light-filled layouts, each space reflects a commitment to quality and thoughtful design. Whether you're settling into a cozy one-bedroom or a spacious three-bedroom residence, the interiors offer a fresh, move-in-ready feel with modern conveniences throughout.

Highlights include:
  • Custom kitchens by Wilson Developments – built for both beauty and functionality
  • Luxury vinyl flooring – durable, elegant, and low-maintenance
  • Full appliance package – including washer, dryer, stove, and dishwasher
  • In-suite laundry – for added privacy and convenience
  • Abundant natural light – especially in the upper units with oversized windows
  • Efficient heating and cooling systems – for year-round comfort
  • Pet-friendly policy – so your furry companions are welcome too
  • One included parking space – for every unit
  • Utilities separately metered – putting control in your hands

Every detail at The Quinn has been carefully selected to create homes that feel warm, functional, and effortlessly livable.

Wellington way : mount forest

Interior

floor Plans

Features

overview

Email:  service@wilsoncorp.ca
Phone: (519) 509 - 8000 ext. 118
Address: 237 Industrial Drive, Mount Forest, Ontario N0G 2L0

Whether you're searching for a great rental home or need more information about our available suites, our team is ready to assist.

Fill out the form or email us directly at service@wilsoncorp.ca — we’ll respond within 24–48 business hours.

*By submitting this form, I agree to receive email and/or SMS communications from Wilson Developments regarding project updates, community news, and exclusive builder offers. I understand that I can withdraw my consent at any time by clicking the unsubscribe link in any email or by replying STOP to any SMS message.

Helping You Find the Perfect Space

Helping You Find the Perfect Space

Thank you! We've received your inquiry, and will be in touch within 24 - 48 business hours. 

Email: service@wilsoncorp.ca
Phone: (519) 509 - 8000 ext. 118
Address: 237 Industrial Drive, Mount Forest, Ontario N0G 2L0

IF YOU NEED ANY FURTHER ASSISTANCE, PLEASE FEEL FREE TO REACH US AT THE FOLLOWING:

Inquire today For availability

explore your options